Astro Single Wide Series
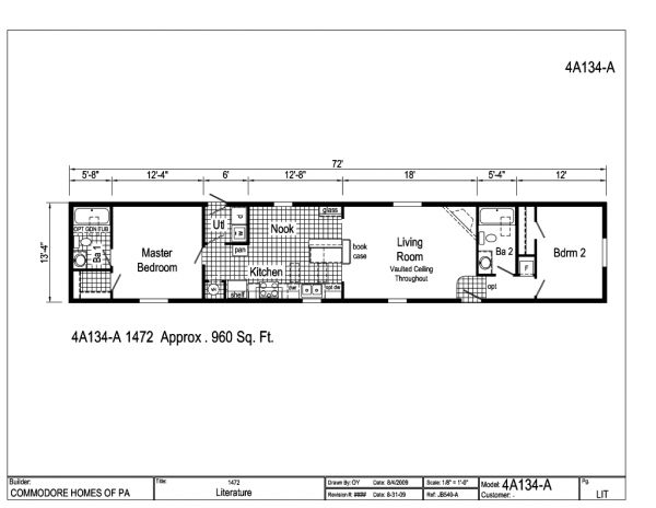
4A134A
No description available at this time.
Click on one of the categories below to view some of the options available on this home.
Back to Homes List



