Manorwood Two-Story Series
Carlisle NS307A
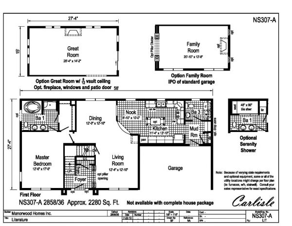
Our Carlisle two story home is warm and inviting from the exterior, wait till you see the interior. A grand foyer greets you when you enter the home. The foyer is open to the second story, making it a very bright and airy foyer space. The foyer leads you into the Living room space, this is open into the dining space. An archway leads into the nook area and into the Kitchen.
The kitchen has a large amount of cabinet and countertop space, but if you would like more, you can add the optional island to the kitchen. The kitchen leads you into a mud room that has an attached ½ bath and the washer & dryer space. The mud room leads you into the garage. This home offers 4 bedrooms, the master bedroom is on the first floor of the home with a walk in closet and an attached master bathroom.
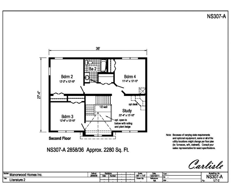
The bathroom includes a walk in shower, a tub, and double sinks. The other three bedrooms are located on the second story and are fairly equal in size and closet space. The second story also has a full bath, a study area, and a large storage closet.
This home has two different options to add more living space, you can attach a pod unit on the rear of the home that is a great room and will add a large living space, or you can add a family room in place of the standard garage area. Either of these options will give you plenty of living space if your household requires it.
Check out the features and options available for this home!
The kitchen has a large amount of cabinet and countertop space, but if you would like more, you can add the optional island to the kitchen. The kitchen leads you into a mud room that has an attached ½ bath and the washer & dryer space. The mud room leads you into the garage. This home offers 4 bedrooms, the master bedroom is on the first floor of the home with a walk in closet and an attached master bathroom.
The bathroom includes a walk in shower, a tub, and double sinks. The other three bedrooms are located on the second story and are fairly equal in size and closet space. The second story also has a full bath, a study area, and a large storage closet.
This home has two different options to add more living space, you can attach a pod unit on the rear of the home that is a great room and will add a large living space, or you can add a family room in place of the standard garage area. Either of these options will give you plenty of living space if your household requires it.
Check out the features and options available for this home!

* All renderings are artists' conceptual drawings and may vary from the actual plans and homes as built. Square footage numbers are approximate and may vary. Some features shown may be optional or added on-site by others.
Click on one of the categories below to view some of the options available on this home.
Back to Homes List















