Manorwood Ranch & Cape Series
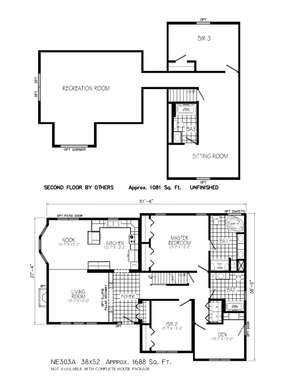
Carefree NE303A




The beautiful exterior elevation welcomes you to enter the formal foyer to an elegant pillared formal living room with a wall recessed fireplace. The large bay window and patio door make the dining area open and breezy. The easy-to-use kitchen and bathrooms maximize functionality and storage space. Come home to the Universal Lifestyles "Carefree".
* All renderings are artists' conceptual drawings and may vary from the actual plans and homes as built. Square footage numbers are approximate and may vary. Some features shown may be optional or added on-site by others.
Click on one of the categories below to view some of the options available on this home.