Manorwood Ranch & Cape Series
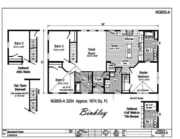
Binkley 2 (2M3601-X)
The Manorwood series is a collection of homes that covers the entire spectrum of homebuilding. If it is small and basic - Manorwood has the design for you. If you are looking for a custom design that requires a total redraw by our in-house drafting team, Manorwood can do it. Manorwood's plans are popular in every area of the Northeast United States.

* All renderings are artists' conceptual drawings and may vary from the actual plans and homes as built. Square footage numbers are approximate and may vary. Some features shown may be optional or added on-site by others.
Click on one of the categories below to view some of the options available on this home.
Back to Homes List




.jpg)




