Warning: in_array() expects parameter 2 to be array, null given in /home/xhn1zyuce2to/public_html/cvh/homedetail_data.php on line 132

Manorwood Multi-Family Series

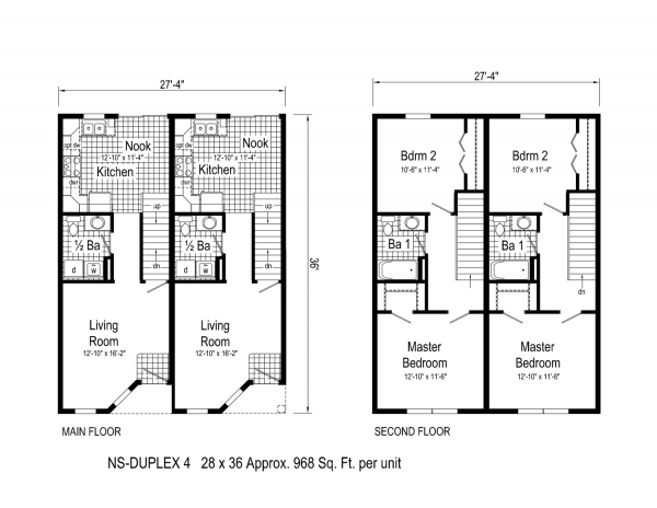
NS-Duplex 4

  1,936 Sq Ft   4 Bedrooms   3 Baths

Each unit in this two story duplex has two bedrooms and one and a half baths. The half bath is located on the first level and the full bath located on the second. Each unit is approximately 968 Sq Ft.

* All renderings are artists' conceptual drawings and may vary from the actual plans and homes as built. Square footage numbers are approximate and may vary. Some features shown may be optional or added on-site by others.

Contact us about this home.










Exterior / Floorplan


hidden

© 2020 Catskill Valley Homes. All rights reserved.