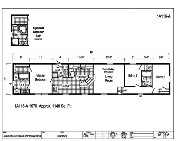
Astro Single Wide Series
1A116A
Our most affordable entry level single section home.
Click on one of the categories below to view some of the options available on this home.
Back to Homes List







