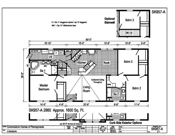
Nova Series
SK957A
Exceptional sectional homes that offer flexibility and options to personalize your home. Available in a wide variety of floor plans and widths.
Click on one of the categories below to view some of the options available on this home.
Back to Homes List

















