Manorwood Ranch & Cape Series
Hillsdale (2MC3005-R)
A beautiful covered porch greets you as you enter this home. Upon entering the home, it is an open concept living room and kitchen. The Kitchen features an eat at island, with plenty of cabinet storage, even offering a pantry cabinet. The kitchen also opens into a nook, that leads you to the hall bathroom and the utility room. It is a 3 bedroom, 2 bath home, with the addition of the upstairs to be finished on site to add more space.
The home offers the master bedroom on one end of the home with the other two bedrooms on the opposite end. The master bedroom features a master bathroom and a walk in closet that you enter from the bath. The other two bedrooms are very close in size and closet space. There is a designated are in the hallway for a bench, and a drop zone for bookbags, purses, briefcases, etc.
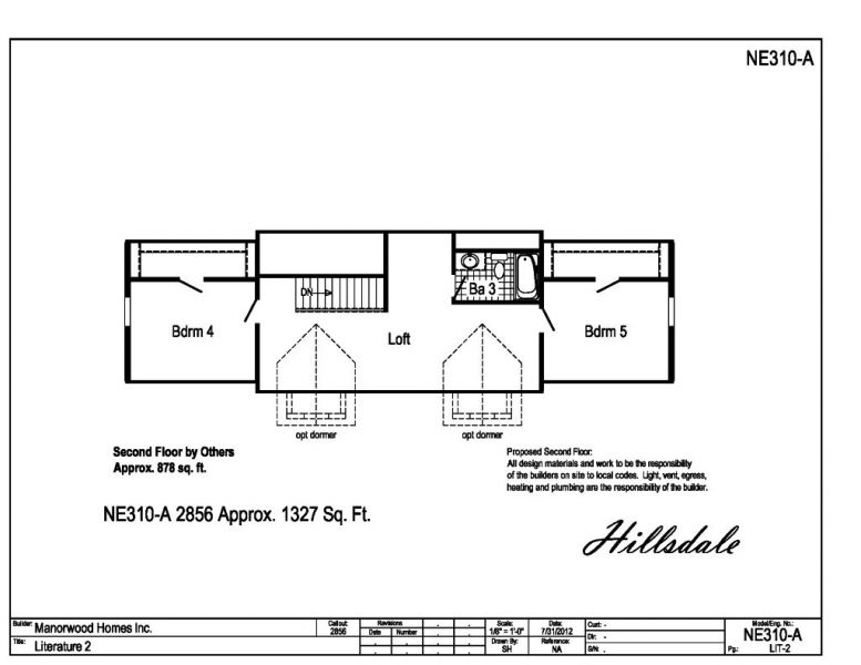
The second story of this home will need to be finished on site by others, but could add two more bedrooms a bathroom, and a loft area if desired.
The home offers the master bedroom on one end of the home with the other two bedrooms on the opposite end. The master bedroom features a master bathroom and a walk in closet that you enter from the bath. The other two bedrooms are very close in size and closet space. There is a designated are in the hallway for a bench, and a drop zone for bookbags, purses, briefcases, etc.
The second story of this home will need to be finished on site by others, but could add two more bedrooms a bathroom, and a loft area if desired.

* All renderings are artists' conceptual drawings and may vary from the actual plans and homes as built. Square footage numbers are approximate and may vary. Some features shown may be optional or added on-site by others.
Click on one of the categories below to view some of the options available on this home.
Back to Homes List
