Manorwood Ranch & Cape Series
Canton (3M3002-X)
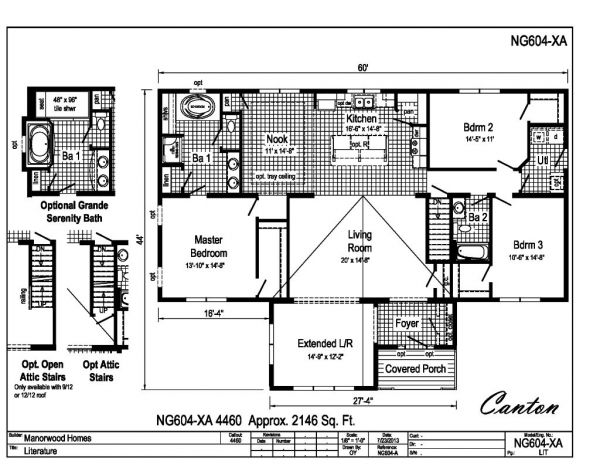
A beautiful covered porch is the wow factor for this homes' exterior! Check out the details of this 2146 sq ft home. A very large entry foyer takes you into the open concept floor plan. Two living spaces border the foyer area, an extended living space on one side and a spacious living room on the other that flows right into the open kitchen.
The kitchen features has a great optional island - this island has room for barstools on one side and three cabinets on the other, the large countertop will add amazing prep space to your kitchen as well as adding a great space for people to eat, or do homework. The kitchen is considered an eat-in kitchen being open into the nook area. Another pantry closet is located in the nook extra storage space for those kitchen items you only need once in awhile! The nook has a great optional tray ceiling to give the space a little character!
This home has three bedrooms and two bathrooms. The bedrooms are separated by the living space in this home. The secondary bedrooms are very similar in size and closet space and both feature double windows. The secondary bathroom is located her between the two bedrooms and features a single sink and tub/shower combination. The master bedroom is a large room with a nice walk in closet, and a spacious attached bathroom. The master bathroom has double sinks, a great soaker tub with shelving, a walk in shower, a separate closed off area for the toilet, and a great linen closet for more storage. This bathroom has the option to go to the "Grande Serenity Bath" which makes this bathroom even more serene.
The kitchen features has a great optional island - this island has room for barstools on one side and three cabinets on the other, the large countertop will add amazing prep space to your kitchen as well as adding a great space for people to eat, or do homework. The kitchen is considered an eat-in kitchen being open into the nook area. Another pantry closet is located in the nook extra storage space for those kitchen items you only need once in awhile! The nook has a great optional tray ceiling to give the space a little character!
This home has three bedrooms and two bathrooms. The bedrooms are separated by the living space in this home. The secondary bedrooms are very similar in size and closet space and both feature double windows. The secondary bathroom is located her between the two bedrooms and features a single sink and tub/shower combination. The master bedroom is a large room with a nice walk in closet, and a spacious attached bathroom. The master bathroom has double sinks, a great soaker tub with shelving, a walk in shower, a separate closed off area for the toilet, and a great linen closet for more storage. This bathroom has the option to go to the "Grande Serenity Bath" which makes this bathroom even more serene.

* All renderings are artists' conceptual drawings and may vary from the actual plans and homes as built. Square footage numbers are approximate and may vary. Some features shown may be optional or added on-site by others.
Click on one of the categories below to view some of the options available on this home.
Back to Homes List





















