Manorwood Ranch & Cape Series
Benton 2M3019-X
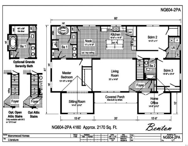
The Benton modular home has a great open floor plan. Upon entering the home you enter the very large living room, which is open into the spacious kitchen. The kitchen has a very large optional island with an overhang for stools. A walk in pantry provides extra storage space. The eat in kitchen nook is a very spacious area that has a beautiful tray ceiling option. The nook also features a pantry closet.
The secondary bedrooms are down the hall from the kitchen, they both feature a walk in closet. The second bath, utility room, and the basement stairwell are also in this hallway. The master bedroom is on the opposite end of the home, it features a large walk in closet and a very spacious, a sitting room, and luxurious master bath. The bath has double lav sinks, a linen closet, walk in shower, soaker tub, and a closed off toilet. This bath also has an option to make it a Grande Serenity bath, which includes a larger shower, larger soaker tub, and a decorative touch to the lav area.
This home also offers a home office at the front of the home, a great additional space for the home. View all the optional features of this floor plan by clicking the link above.
The secondary bedrooms are down the hall from the kitchen, they both feature a walk in closet. The second bath, utility room, and the basement stairwell are also in this hallway. The master bedroom is on the opposite end of the home, it features a large walk in closet and a very spacious, a sitting room, and luxurious master bath. The bath has double lav sinks, a linen closet, walk in shower, soaker tub, and a closed off toilet. This bath also has an option to make it a Grande Serenity bath, which includes a larger shower, larger soaker tub, and a decorative touch to the lav area.
This home also offers a home office at the front of the home, a great additional space for the home. View all the optional features of this floor plan by clicking the link above.

* All renderings are artists' conceptual drawings and may vary from the actual plans and homes as built. Square footage numbers are approximate and may vary. Some features shown may be optional or added on-site by others.
Click on one of the categories below to view some of the options available on this home.
Back to Homes List





















