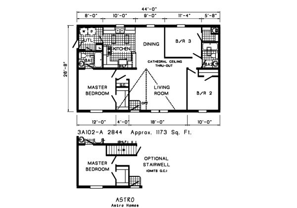
Astro Ranch Series
3A102A
No description available at this time.
_001.jpg)
* All renderings are artists' conceptual drawings and may vary from the actual plans and homes as built. Square footage numbers are approximate and may vary. Some features shown may be optional or added on-site by others.
Click on one of the categories below to view some of the options available on this home.
Back to Homes List