New Horizon Series
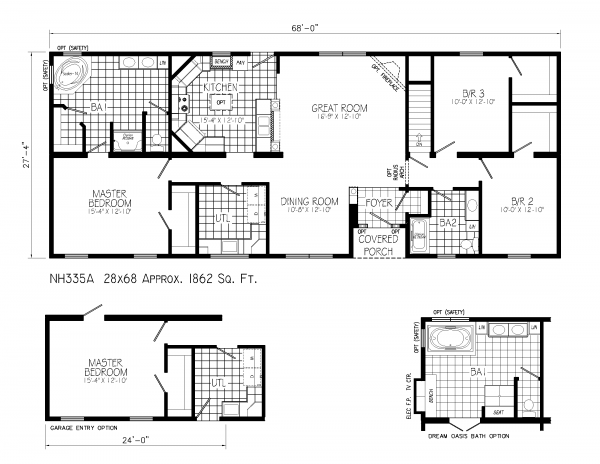
Glamorgan NH335A




No description available at this time.
Click on one of the categories below to view some of the options available on this home.