New Horizon Series
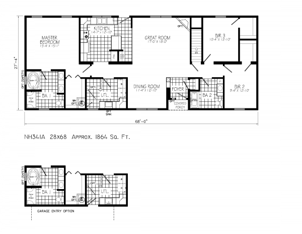
Freehaven NH341A




Enter the home of your dreams to a spacious great room, formal dining room with accent column, a very well designed eat-in kitchen and three bedrooms with walk-in closets, including an oversized master bedroom/master bedroom suite. The utility room features a storage area, laundry sink and a convenient entry to a garage. The universal design features in the Freehaven makes it the ideal home for all generations.
Click on one of the categories below to view some of the options available on this home.