Nova Series
SK696A
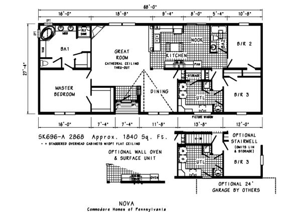
The Nova SK696A (3BR/2BA) is a great home, introduced in the spring of 2007 to considerable fanfare. Designed with a Great Room, separate Dining Room, and a spacious Utility Room.
Click on one of the categories below to view some of the options available on this home.
Back to Homes List








