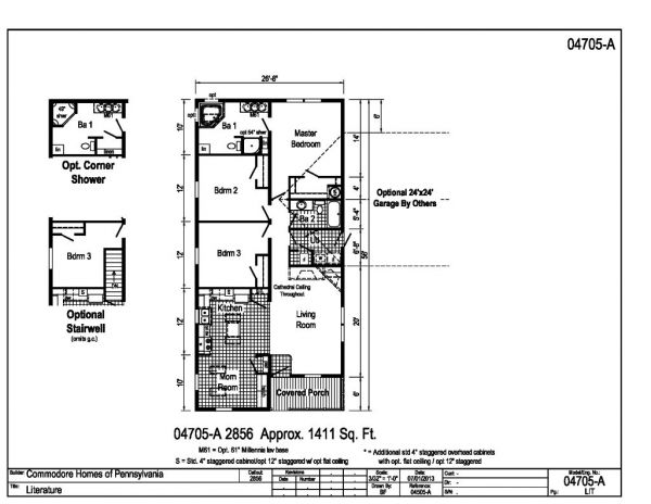
Nova Series
04705A




Homes specifically designed for narrow lots and communities.
Click on one of the categories below to view some of the options available on this home.