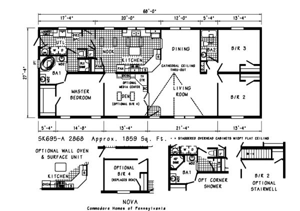
Nova Series
SK695A
No description available at this time.
Click on one of the categories below to view some of the options available on this home.
Back to Homes List







